ARBEITSWELT HOMAG HOLZBRONN

Design arc+ GmbH
Location Calw-Holzbronn, Germany
To perceive our environment, we instinctively respond first to the strongest sensory stimuli — such as light and sound — before moving on to cognitive analysis based on experience and learned knowledge. Adults, and especially specialists, are often subject to unconscious conditioning, which makes this process more efficient.

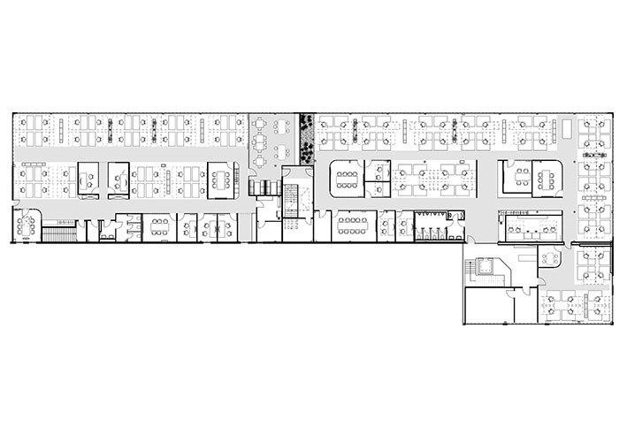
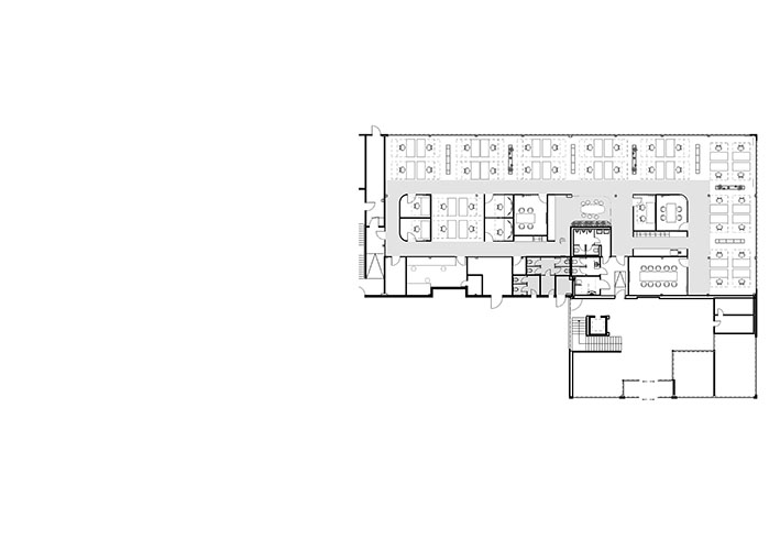
Anyone designing spaces in which people are meant to act both productively and economically while also feeling emotionally comfortable works with supportive indicators, guidance systems, and points of information that users can perceive intuitively and almost incidentally. Good — and responsible — interior design therefore pays close attention to the movements and actions of users within a workspace, whether it is used solely by employees or also by clients and guests. This approach is exemplified — both functionally and aesthetically — by the project for Homag in Holzbronn, Swabia, where a workspace for 170 employees was created across 1,850 square meters of office space. Distributed over two levels, 115 permanent workstations are arranged primarily along the long window fronts, but also partly within the central zones of the highly efficient floor plans. The project involved the adaptive reuse of a hall originally built for production. The intuitively understandable wayfinding system operates through light strips installed beneath ceilings that are either blackened or fitted with acoustic panels. These form linear paths along circulation routes, curved lines in movement areas, and circular shapes in static zones. On both floors, the open office includes a central collaborative area as a meeting point and communication hub, offering a kitchen, seating niches, and open spaces for exchange. Meeting and retreat rooms are assigned to the “cores” along the central axis of each floor, complemented by additional spaces along the inner perimeter wall, where selective glazing provides views into the adjacent production hall to the south. The company specializes in machines and systems for panel cutting, encompassing both hardware and software solutions as well as training — resulting in a broad portfolio managed by the administrative team. Through the redesign, the required office space and on-site staff presence were reduced to 70 percent, enabled by desk sharing combined with a booking system and personal lockers. Practical and efficient — an indicator of best work.

Details
ClientHomag Plattenaufteiltechnik GmbH
CityCalw-Holzbronn
CountryGermany
Architectsarc+ GmbH
CompletionJuly 2024
SectorProduction industry
Project typeModification/ conversion
Gross floor area m21,850
Number of employees170
Solutions
Lighting-
Flooring-
Acoustics-
Workspace Furniture-
Conference Furniture-
Lounge Furniture-
Greenery-
Technology-
Gastronomy-
Best workspaces initiators