Attraktiver Heimathafen für digitale Nomaden

Design Drees & Sommer SE, Bereich User Centric Spaces & Places
Location Berlin, Germany
There is a fundamental difference between a tourist and a traveler. While the former spends only a short, pre-planned time away from their usual place of residence — with a fixed return date — the latter is in a phase of life without a fixed location and enjoys being on the move without a clearly defined return. In the modern working world, an even more far-reaching concept exists: that of the “nomad.” Here, professional activity is designed in such a way that no fixed workplace — with desk and room — is required; instead, one can respond flexibly and spontaneously to daily tasks or even work from another country. This is particularly true for globally operating companies, whose external employees only occasionally return to the “home base,” for example to attend training sessions.

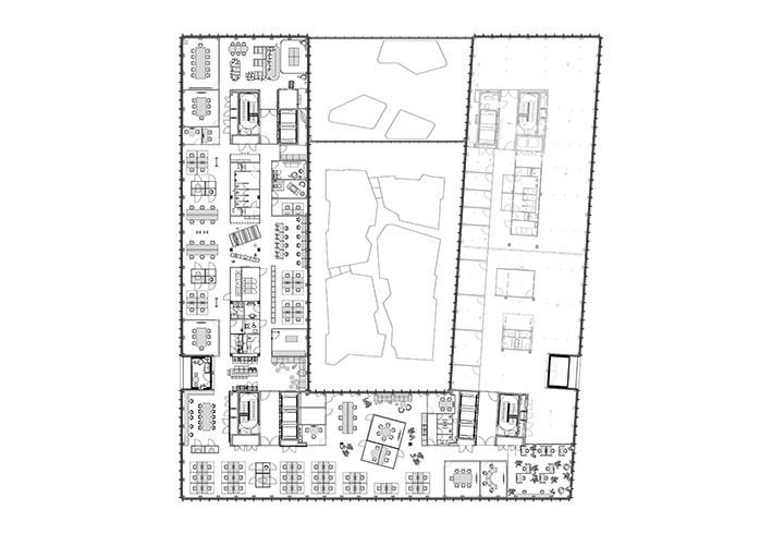
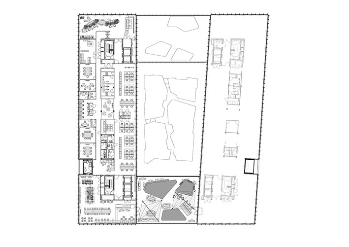
Drees & Sommer designed a new working environment for such a consulting company, comprising 2,454 square meters of office space in a timber hybrid building in Berlin. The brief included 128 permanent workstations, as well as considerations such as diversity, inclusion, and sustainability. The design was intended to be both brand-appropriate and forward-looking. The interior concept complements the fully equipped workstations with generous relaxation areas, including balconies on every floor, a green terrace, and quiet zones within shared spaces. Additional facilities include meditation rooms, a parent-child room, and a prayer room — making it a place where people can truly feel at ease. From smart meeting rooms to event spaces and stages for guests, the workspace offers a wide range of functions. It is flexible in use, adaptable to future requirements, and, of course, designed to be barrier-free. Custom solutions with a high level of detail and sustainable materials characterize the interior design, which is also dedicated to fostering creative processes and diverse modes of work. Digital and analog activities are seamlessly integrated, connections and interactions find their place intuitively — and even a “New Work etiquette” has become part of this new working environment.

Details
Clientanonymous
CityBerlin
CountryGermany
ArchitectsDrees & Sommer SE, Bereich User Centric Spaces & Places
CompletionJanuary 2025
SectorConsultation
Project typeNew construction
Gross floor area m22,454
Number of employees1200
Solutions
Lighting-
Flooring-
Acoustics-
Workspace Furniture-
Conference Furniture-
Lounge Furniture-
Greenery-
Technology-
Gastronomy-
Best workspaces initiators