Caramel Carage

Design Caramel architekten
Location Wien, Austria
The major issue of our time is reuse. One could argue that such an approach is ultimately nothing more than a reflection of the natural process of becoming, passing away, and becoming again… This is a good thing, because it has long been known that humans are too wasteful with available resources.

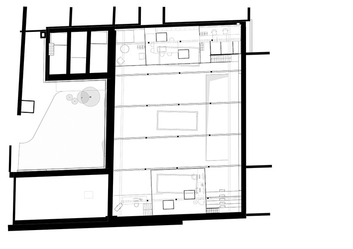
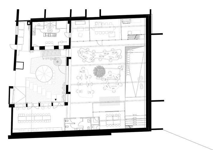
Architectural firms are among the economic actors who make their living by designing new things—or at least redesigning them. An indispensable service that must be provided responsibly. When Caramel began to design its new office location, the principle of of reuse as the guiding principle from the very beginning. A 1950s-era utility building situated in the backyard was planned and eventually occupied; with its very distinctive space, it immediately appealed to the architects’ already creative working style: a hall with a barrel vault, 5.5 meters high, with three large skylights at the apex—the ideal location for a work environment based on collaborative, communicative interaction, designed both functionally and symbolically “on one level.” The renovation brought to light relics worth preserving from the building’s past use as a workshop; a ramp dating from the pre-war period was discovered and uncovered. Its characteristic slope complements the spatial interplay and now provides access to a party cellar in the basement. The ground floor was designed as an open office, with a central podium in the middle dedicated to meetings, lectures, or group activities. Piece by piece, the workspace was assembled from old iron and steel elements, garage doors, and glass blocks, with the technical systems left exposed. For the
acoustic sprayed plaster, waste paper was used—unbleached and bound with natural glue. Everything was sourced inexpensively from existing stock or the internet, with each incorporated object lending the space new aesthetic charm and narrative elements. The Caramel team now fits into this environment as if it were second nature. It has become just as welcoming as it is inspiring. And that is exactly what matters.

Details
ClientCaramel architektInnen zt-gmbh
CityWien
CountryAustria
ArchitectsCaramel architektInnen zt-gmbh
CompletionMay 2025
SectorArchitecture
Project typeModification/ conversion
Gross floor area m2273
Number of employees19
Solutions
Lighting-
Flooring-
Acoustics-
Workspace Furniture-
Conference Furniture-
Lounge Furniture-
Greenery-
Technology-
Gastronomy-
Best workspaces initiators