Designit Studio

Design VON M GmbH
Location Munich, Germany
The new offices of the design and innovation agency Designit follow their basic premise of product and service design focusing on peoples’ needs.

Tailor-made Design Concept

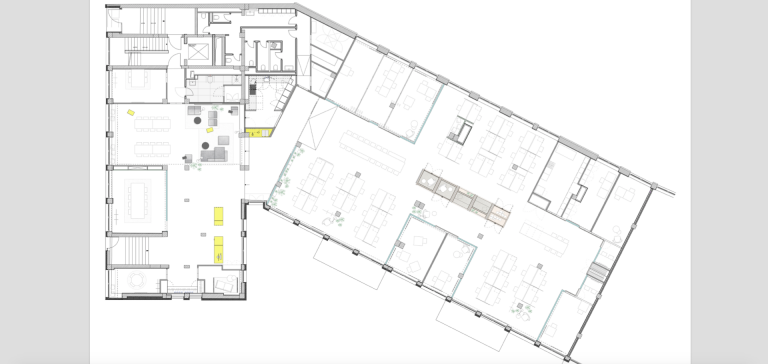
Before coming up with a tailor-made design concept, architectural studio VON M analyzed functions and wishes of the client in detail. To the front and more public part of the premises are the reception, meeting rooms, kitchen and coffee making facilities, as well as a multifunctional ‘Adaptive Space’.  This area can be separated by a curtain for customer appointments or lectures. Furthermore, eight project rooms are laid out at the back of the premises, some of which can be connected by partitions. One space is specifically designed for the presentation of virtual and augmented reality projects, whilst two call rooms offer seclusion and the equipment for video calls.

Natural Materials

The 44 flexible workplaces can be divided into multifunctional zones, creating both common areas and retreats for concentrated work. In addition, cozy niches and an ‘escape room’ invite staff to relax as they wish. A recurring design element are the acoustic wall panels made of gray glazed birch wood, which can each be equipped with bespoke boards, pins and hooks and thus act simultaneously as a presentation area for ​​working projects. The color concept provides for a monochrome grey background in the work areas, which offers a discreet backdrop to displays of some of the agency’s work. Accents matching the corporate identity can be found in the reception area as well as in the meeting rooms in the form of wall colors, curtains, carpets and lacquered lampshades. The company logo is picked up in an abstract form in a recurring pattern of holes, whilst natural materials such as wood, wool felt, bast and cork all create an inviting atmosphere.

Details
ClientDesignit Germany GmbH
CityMunich
CountryGermany
ArchitectsVON M GmbH
CompletionJune 2018
SectorDesign Agency
Project typeModification/conversion
Gross floor area m2894
Number of employees50
Solutions
LightingPlanlicht (Quadro, Dindi) | Fluvia (Slim System) | Studio Faubel (Cassa Cork Light) | Artemide (Parabola 80) | Nyta (Tilt)
FlooringParquet oak
AcousticsAcoustic boards: Hera Design
Workspace FurnitureSide table: Hay (Slit) | Bench: Hay (CPH)
Conference FurnitureChairs conference room: Muuto (Fiber Armchair) | Conference table: Vitra (Joyn)
Lounge FurnitureBox with integrated retreat- and phone-niches: Design by VON M | Table adaptive space: Hay (CPH) | Chairs adaptive space: Hay (About A Chair) | Sofa: Hay (Mags soft) | Chair with blades: Vitra (Tip Tone) | Sofa and armchair: Artek (Kiki)
Greenery-
TechnologyA project space is explicitly designed for the presentation of virtual and augmented reality projects, two call rooms offer seclusion and the necessary equipment for video calls. Video conferencing systems are integrated in each meeting and project room.
Gastronomy-
Best workspaces initiators