GEMÜ Headquarter

Design Schmelzle + Partner MBB Architekten BDA
Location Kupferzell, Germany
When it became too dark among the closely packed houses of an ancient city, and people sought not only daylight but also ventilation and, ultimately, a more pleasant atmosphere, they built an atrium. In large buildings, this recessed space—which was open at the top back then—remains an important method for bringing light and air into deep interior floor plans. Today, these tall volumes are naturally enclosed with glass roofs, thus transforming them into valuable hall spaces.

Something similar can also be seen in the central administrative building of GEMÜ, the global market leader in valves and automation components, in Kupferzell.
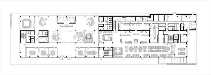
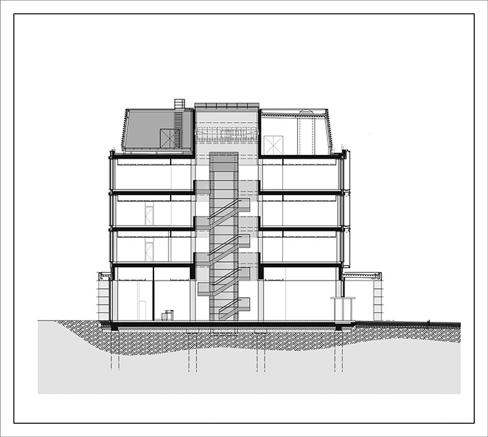
The structure was built as a reinforced concrete construction with an energy-saving double facade and was given—despite its rather narrow floor plan—its own 25 meter-high atrium. Precisely because it is a great asset when daylight streams in and, thanks to the surrounding galleries and visual connections across all five floors, an architecturally created sense of community and transparency is established within the building. People see one another, can briefly wave, and are aware of what is happening “downstairs.” Surrounding the white-toned hall—for whose art installation a competition was held—workstations for 300 employees are distributed across 5,315 square meters of office space. The ground floor houses the reception area, waiting areas, meeting and conference rooms, as well as a comfortably furnished restaurant with an outdoor terrace lined with pine trees. This is complemented by an Italian-style café—complete with a barista. The workspaces were designed with flexible floor plans to accommodate new working methods. Walls can be installed in a 3-meter grid, and the technical building services are configured accordingly. Acoustics are enhanced by curtains and perforated heating and cooling ceilings, while external sun shades provide shading. The open-plan offices integrate workshops for agile and rapid processing of workpieces, which can also be used as training or meeting areas. The third floor houses the management offices, combined with the customer reception area. Here there is a lounge with a bar, which creates a sophisticated atmosphere with wood and leather. The loggias attached to the offices, as well as a green roof terrace, refer with their connection to the outdoors to the original architectural openness of an atrium.

Details
ClientGEMÜ Gebr. Müller Apparatebau GmbH & Co. KG
CityKupferzell
CountryGermany
ArchitectsSchmelzle + Partner mbB Architekten BDA
CompletionJune 2024
SectorProduction industry
Project typeNew construction
Gross floor area m25,315
Number of employees294
Solutions
Lighting-
Flooring-
Acoustics-
Workspace Furniture-
Conference Furniture-
Lounge Furniture-
Greenery-
Technology-
Gastronomy-
Best workspaces initiators