Getzner Werkstoffe

Design Brückner Architekten GmbH
Location Oberhaching, Germany
Employee satisfaction, sustainability and a welcoming flair: this newly constructed office building in Oberhaching near Munich ticks all the boxes of a contemporary workspace. The design by Brückner Architects follows the ‘Smart Working’ concept.

Modern Premises for Smarter Working

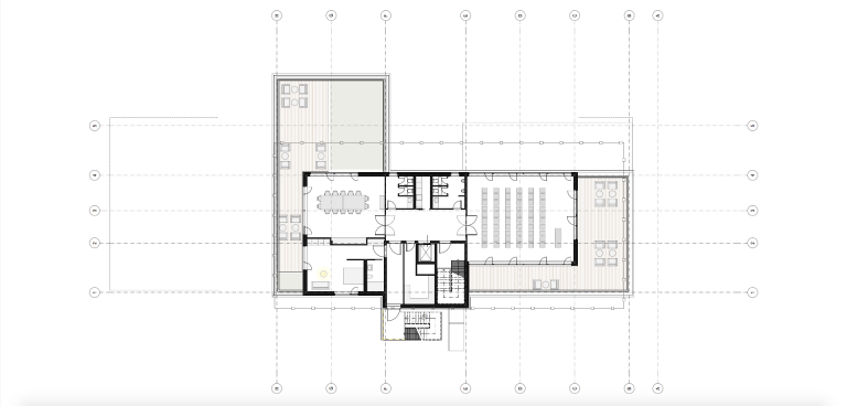
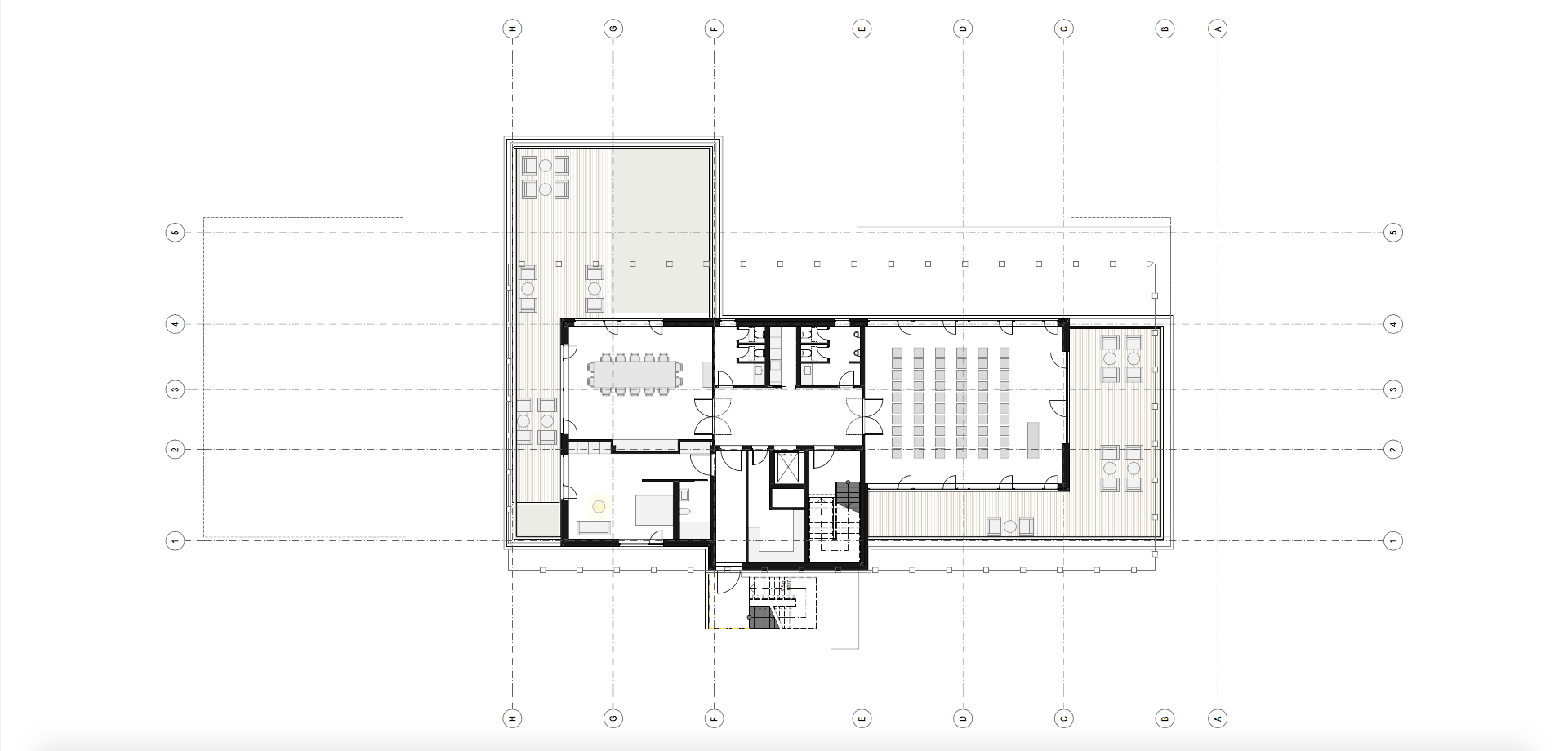
Brückner Architects have developed these ultra-modern premises in close cooperation with their client Getzner Werkstoffe, a leading specialist in the field of vibration isolation and protection. The building has a separate conference floor, with the ‘Piz Buin’ room for large conferences together with the smaller ‘Watzmann’ room, complete with an adjoining roof terrace. The architects have organized the floor plan following the tried and tested ‘Smart Working’ concept. Designated areas which serve both as a meeting place and as a retreat for undisturbed work are integrated into the office space, each attached to a small meeting room.

Alpine Flair

The alpenglow served as an inspiration for the color scheme. The inimitable orange tint of mountains in the evening light adds dashes of color throughout the building while simultaneously strengthening the client’s corporate identity: the color orange is part of the company logo. Alpine flair has also found its way into the cafeteria, where employees can enjoy their lunch break in an environment that combines natural wood and warm hues. The rustic wooden entrance door and the stone façade further add to the Alpine feel. The energy for heating and cooling the building is generated by an efficient and sustainable heat pump and by using groundwater. This process takes into account the environmental protection concept practiced at Getzner which is based, among other things, on the use of groundwater instead of drinking water in production.

Details
ClientGetzner Werkstoffe GmbH
CityOberhaching
CountryGermany
ArchitectsBrückner Architekten GmbH
CompletionJuly 2019
SectorAdministration manufacturing industry
Project typeNew building
Gross floor area m22050
Number of employees66
Solutions
LightingOutdoor lighting: Bega | Office lighting: Trilux, IGuzzini
FlooringCarpet: Interface | Parquet: Bauwerk
AcousticsTextile fabric: Getzner | Substructure: Carpenter
Workspace FurnitureTable: Vitra Tyde | Chair: Vitra Medapal
Conference FurnitureArper Catifa, Vitra Eames Aluchair
Lounge FurnitureRolf Benz Freistil 176, Rolf Benz Freistil 173, BENE Paris, USM Haller Sideboard
Greenery-
TechnologyTelephony system with headset
GastronomyMiele, Bora
Best workspaces initiators