Industrial Makerspace BA2

Design vonMeierMohr Architekten BDA PartG mbB
Location Landsberg am Lech, Germany
Just imagine: after creation, nothing more had happened. God would have rested, our ancestors would have enjoyed a full-service paradise, would not have eaten the forbidden apple, and would not have been expelled. Some philosophers — and certainly many hedonists — would rave about it, for there would be no violence, no hardship, no work. And yet, it would be endlessly boring. We would lack challenges, our intelligence would remain in energy-saving mode, no competition, no surprises — and above all, no ideas.

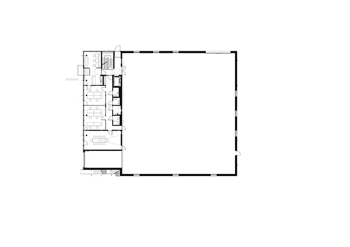
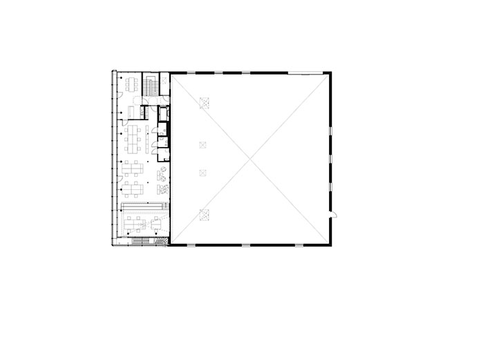
Innovation, however, is essential, and it requires space and opportunity. One such opportunity is the new concept of the Industrial MakerSpace. With its working environment, it forms the physical core around which the activities of the Community Transformation, Innovation Services, Venture Capital, and Design Collective are organized. More concretely: what we find here in Landsberg is an “all-inclusive location” that makes creative processes easier. All users operate their own facilities but have access to shared workshops, work in offices and team spaces, and can host events, workshops, and conferences. Ongoing administration for tenants is deliberately kept to a minimum; costs are based on the number of workstations used and the level of investment in the required technology. How clever is that! Architecturally, the Industrial MakerSpace, realized by vonMeierMohr Architekten, can be described as follows: everything is distributed across a total area of 1,488 square meters. Dominating the space is a large, square workshop hall with windows on three sides. It features an access gate and an integrated, climate-controlled truck entrance. After all, work inside should be able to continue under comfortable conditions even during loading and unloading in winter. To the west lies a 246-square-meter, two-story office wing. It houses the management team of four employees as well as 30 permanent workstations, distributed across offices of varying sizes and an open-office area. A lounge, tea kitchens, printer rooms, a large multifunctional space, and an “Open Light Room” equipped with media technology for presentations and events complete this innovation hub for industry, commerce, innovators, and start-ups: Think + Make!

Details
ClientIndustrial Makers GmbH
CityLandsberg am Lech
CountryGermany
ArchitectsvonMeierMohr Architekten BDA PartG mbB
CompletionJanuary 2025
SectorTech
Project typeNew construction
Gross floor area m2246
Number of employees4
Solutions
Lighting-
Flooring-
Acoustics-
Workspace Furniture-
Conference Furniture-
Lounge Furniture-
Greenery-
Technology-
Gastronomy-
Best workspaces initiators