Optimal Angle

Design KLM-Architekten und Ingenieure GmbH
Location Leipzig , Germany
In the urban centre of Leipzig, this newly designed workspace is a great place to work.

If you want to see magnificent perimeter block buildings in a city, you should visit Leipzig. Despite the destruction caused by the war, the urban centre has probably the largest stock of historic commercial and office buildings to be found in Germany. The standards are correspondingly high – and developers as well as architectural firms are always faced with the decision of whether to present their new buildings with routine fronts or with appropriate aplomb. The “Bernsteincarré” presented here completes a central building site in the historic city space that was formerly occupied by magnificent burgher houses and whose centre has now been redefined since 2004 by the rectangular box structure of the “Museum of Fine Arts”. Four enclosing buildings were planned on the outer sides, the last of which is the angular building that has now been completed.

Concise and effective

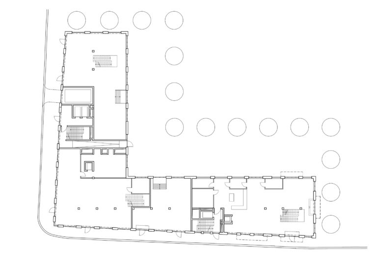
The corner of Brühl and Katharinenstraße – this was the aim of the planning – was to be occupied in a formally concise and effective way. The plot was to accommodate the varied diversity of Leipzig’s houses with a differentiated building division and mixed use. The basis is a basement with underground parking, on top of which sits the base storey, designed in the typical local manner with two storeys and an attractive location for restaurants. The staircase and lift are located in the middle of each of the two wings of the L-plan. The third to fifth floors are standard floors, the sixth floor was set back as a staggered floor and thus visually emphasises the horizontal end of the building.

On the outside, the distinction between the two halves of the building in terms of use becomes clear: the corner section with the front facing Brühl contains office space, while the Katharinen wing is a residential building with 18 city flats. The longer office wing has freely divisible standard floors, which are optimally lit by the triple windows distributed across all window axes and also enable the corresponding connection to the lively urbanity of the quarter.

Front

The primary unique feature of the architecture is the front. It consists of pre-hung coloured fibre-cement elements whose concave plasticity not only creates a personal architectural language, but also a high-contrast play of light and shadow.

"We are looking for innovative and forward-looking concepts for the design of the fronts, taking into account the urban planning and functional framework conditions."
— Thomas Hille, Sonja Richter, Alexander Nestroi

What do you consider to be the main qualities of a good workplace?

Thomas Hille: A workplace is not just a desk, chair and computer. The best technology, the most modern workspaces don’t serve their purpose if the place is the wrong one. Windows are not only responsible for daylight, but for the view. It’s no use looking out of an award-winning office building into a dreadful environment.

Do you see any comparability in interior design for living and for working?

No. Living is private. Working is public. For this reason, I am not an advocate of the home office.

Which functional aspects are decisive for you in the future development of workspaces?

That’s impossible to answer in general, because there are too many individual activities in the workspaces. The user of the workspaces must feel comfortable and be given leeway to participate in the development themselves.

Details
ClientOFB Projektentwicklung GmbH
CityLeipzig
CountryGermany
ArchitectsKLM-Architekten und Ingenieure GmbH
CompletionOctober 2017
Sector
Project type-
Gross floor area m21.200
Number of employees-
Solutions
Lighting-
Flooring-
Acoustics-
Workspace Furniture-
Conference Furniture-
Lounge Furniture-
Greenery-
Technology-
Gastronomy-

Floor Plans

Best workspaces initiators