Quest One Gigahub

Design Drees & Sommer SE, User Centric Spaces & Places
Location Hamburg , Germany
Analysts, planners, organizers, and logisticians exist — this list should be understood in a purely structural sense and not as exclusively masculine — because professionals are needed to manage and optimize processes in a complex and demanding world. They analyze, structure, and conceptualize. Without them, researchers and creatives would face considerable difficulties in putting their ideas into practice.

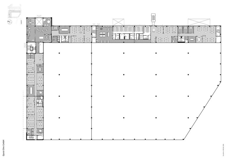
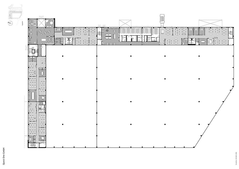
For this reason, companies — whether large or small — require a wide range of people with diverse talents, knowledge, and educational backgrounds. This productive community must be supported: on the one hand by leading specialists and management within the company, and on the other by the designers of architectural spaces and atmospheres in the built work environment. Quest One, a subsidiary of Everllence and part of the Volkswagen Group, focuses on PEM electrolysis and innovative technologies for the production of green hydrogen. Directly adjacent to its production hall in Hamburg — and overlooking it —Drees & Sommer designed a newly built, three-story office wing. This was no small undertaking: 246 permanent workstations and 5,700 square meters of office space had to be planned, supported by vision workshops with the client. The aim was to reflect the core elements of electrolysis as a field of expertise — namely catalysis, water, and electricity — while also responding to the company culture and corporate vision. Varied surfaces and materials, a specifically coordinated lighting design, and integrated acoustic measures were all part of the overall concept. The technical precision of Quest One’s work was to be made visible, alongside principles of functionality and sustainability through the use of sustainable raw materials, recycled products, and circular materials. DGNB Platinum certification was, of course, achieved. The spatial and usage concept was designed to be open and flexible, encouraging agile and hybrid forms of collaboration. A variety of spatial offerings, fluid structures, and optimized technical infrastructure and equipment enable adaptation to future changes and growth processes. The floor plans bring together open and enclosed work areas, focus rooms, phone booths, three social hubs, and a library. Spaces for fitness and yoga, as well as a parent-child office, are also available. The GigaHub is thus highly versatile. Even the entrance area features a showroom and open communication islands.

Details
ClientQuest One GmbH
CityHamburg
CountryGermany
ArchitectsDrees & Sommer SE, User Centric Spaces & Places
CompletionFebruary 2025
SectorRenewable energy
Project typeNew construction
Gross floor area m25,700
Number of employees246
Solutions
Lighting-
Flooring-
Acoustics-
Workspace Furniture-
Conference Furniture-
Lounge Furniture-
Greenery-
Technology-
Gastronomy-
Best workspaces initiators