Raum für Arbeit & Austausch – Co-Working trifft Eventfläche

Design bp Innenarchitektur / Petra Blome
Location Spenge, Germany
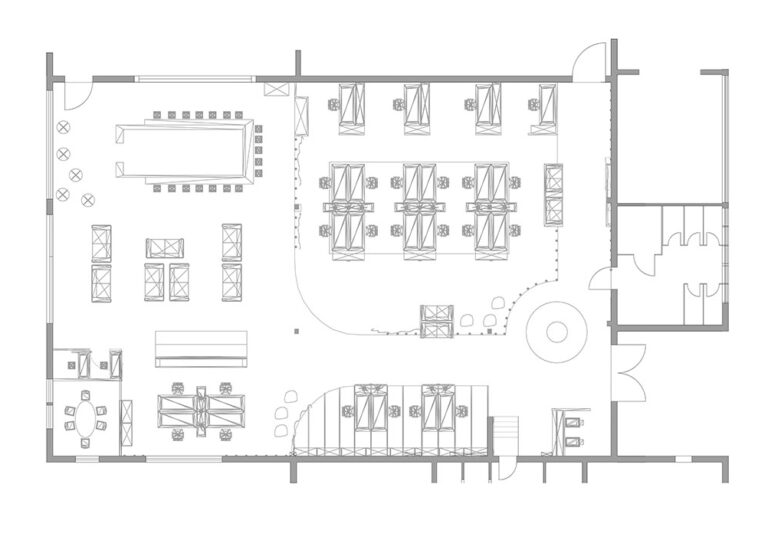
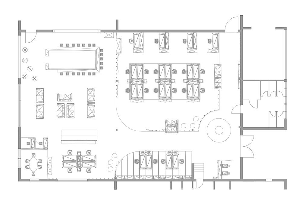
When it comes to shipping larger or smaller items safely and over long distances—to the U.S., for example—the shipping container has been the go-to solution since its invention in the 1950s: a rock-solid, standardized steel box. It has long been part of our world of goods and transport, and its construction and materiality have long shaped an aesthetic of its own. At FHB, a manufacturer of guild clothing in Spenge, East Westphalia, one stands right in the middle of the workplace. It’s all about co-working and events.

A former warehouse was available, 24 workstations needed to be planned, and four different areas — production planning, marketing, sales, and data management—were to be distributed across the 460-square-meter space, each designed with reused trade show construction elements. Additional requirements included a flexible room layout, the ability to accommodate different usage modes, and an attractive overall design. Preference was given to an industrial aesthetic that relies on materials such as corrugated sheet metal, industrial flooring, or fitting relics like an electrical distribution box. In the event area, there is therefore a special attraction: a visually refreshed ocean-going container with an integrated kitchen, cut open on all sides and surrounded by bar stools. This is where people meet, this is where they take a break. Painted oil drums and maritime pine furniture complement the ambiance, as does a seating area made from stacked beverage crates. Their cushions were—naturally by FHB itself—sewn from guild trousers fabric, just like the colorful beanbag chairs or the wall paneling of the phone booths. Thus, the textile product range and the ten available colors are reflected throughout the interior. When designing the spatial layout, attention was paid to clear walkways, supported by track lighting. The work zones, raised by 15 centimeters, thereby gained a subtly perceptible separation from through traffic. Curtains serve to dampen noise and simultaneously act as flexible room dividers, supported by transparent walls, partition panels, or black-lacquered screens made from construction supports. The multifunctional event space can be effectively separated from the office space by curtains.

Details
ClientFHB original GmbH & Co. KG – Peter Hoffmann
CitySpenge
CountryGermany
Architectsbp Innenarchitektur / Petra Blome
CompletionJanuary 2025
SectorProduction industry
Project typeModification/ conversion
Gross floor area m2350
Number of employees88
Solutions
Lighting-
Flooring-
Acoustics-
Workspace Furniture-
Conference Furniture-
Lounge Furniture-
Greenery-
Technology-
Gastronomy-
Best workspaces initiators