Sanierung, Umbau und Erweiterung “Haus der Kunden” Sparkasse Nürnberg

Design baum-kappler architekten gmbh
Location Nürnberg, Germany
In some terms that are used almost inflationarily, many of the things we consider essential and important resonate. If something is merely “nice” or “friendly,” it still falls short of the word “sympathetic.” This term, after all, contains the aspect of empathy — an inner sense of connection that presupposes knowing or sensing what the other person thinks, feels, or wants. An architecture designed for a customer center of a savings bank — a key institution of the public good — should therefore embody more than superficial accessibility; it should reflect a genuine, citizen-oriented engagement. How can this be achieved? Let’s take a look at Nuremberg’s old town, where the local Sparkasse has developed a new “House of Customers.”

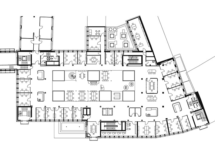
One of its three properties located there was redesigned as part of a listed building ensemble. The structure comprises seven floors, five of them above ground, with 2,916 square meters of office space accommodating 243 employees. During the renovation, the building was stripped back entirely to its load-bearing structure. This made it possible — also incorporating an inner courtyard — to insert a freestanding steel framework forming the interior-defining shelving structure. The central areas of this “shelf,” which shape the space, were suspended across six levels to avoid extensive foundation work in the existing structure. As a result, the geometry of the supports appears very slender. The floor slabs are constructed as solid cross-laminated timber ceilings to reduce loads. This architectural effort was a prerequisite for realizing a new concept: a transparent and openly approachable working environment for both employees and customers. Circulation, orientation, materiality, and lighting design are key components of the overall concept. Non-territorial workstations define the office. On each floor, freestanding boxes were planned to accommodate secondary functions such as wardrobes, employee lockers, and printer stations. The use of the open-office areas is supported by custom furniture, allowing for a wide range of flexible working modes in both process and duration. Lounge areas and zones for quick, direct communication are designed with a residential feel, while traditional desk-based workspaces are optimized for focused tasks. The bright overall atmosphere replaces the former conventionally closed spatial structure, successfully transforming it into a new, expansive workspace that minimizes both physical and functional thresholds and presents itself as equally welcoming for work and for visitors.

Details
ClientSparkasse Nürnberg AdöR
CityNürnberg
CountryGermany
Architectsbaum-kappler architekten gmbh
CompletionMarch 2025
SectorFinance
Project typeModification/ conversion
Gross floor area m22,916
Number of employees243
Solutions
Lighting-
Flooring-
Acoustics-
Workspace Furniture-
Conference Furniture-
Lounge Furniture-
Greenery-
Technology-
Gastronomy-
Best workspaces initiators