Scope Office

Design Scope GmbH
Location Stuttgart, Germany
When an architecture firm designs its own space, it's worth taking a closer look. In addition to creating a sense of identity, this project shows that conventional offices have served their time.

A very personal affair

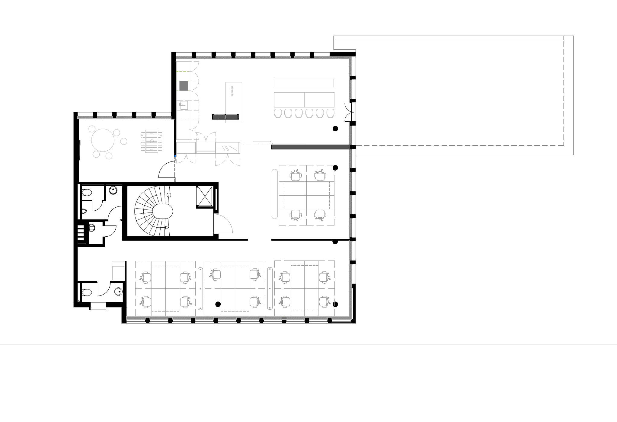
This office in the west of Stuttgart was designed by Scope for Scope, a team of architects as well as interior and communication designers. Tailored exactly to the company’s needs and workflow, a rather traditional floorplan was opened up to create a generous 230-sqm space that spans over two levels. The basic layout sees a division into designated communication zones and an open-space area. The latter is equipped with height-adjustable tables and bespoke screens to provide both privacy and pleasant acoustics. Three meeting rooms, each with different seating arrangements, facilitate spontaneous meetings. The office further comprises ‘think tanks’ for those who need some peace and quiet, touchdown workstations, a material library and a light-flooded studio.

Designing identity

The collage-style combination of different textures, materials and colors comes across as rather sophisticated while also reflecting the diversity of the workforce, contributing further to a sense of identity. A sealed screed in the open-space area conveys a rough industrial charm, nicely complemented by high-quality furniture made of oak and black MDF. The color scheme is dominated by muted shades of black, grey and white. However, graphics with rose details – a reference to the street name, Rosenbergstraße – add a playful touch, as do walls in shades of green, cobalt blue, dusky pink and mint. Transparent shiny curtains create a contrast to the matt surfaces of the furniture. The mix of colors and materials continues into the open kitchen space, providing for a friendly atmosphere for employees and guests to cook together or simply enjoy their morning coffee.

Details
ClientScope GmbH
CityStuttgart
CountryGermany
ArchitectsScope GmbH
Completion-
SectorConstruction industry
Project typeModification/conversion
Gross floor area m2520
Number of employees30
Solutions
LightingProlicht – Bunga + Glorious Slim | Flos – IC Lights + Infra Structure | Nimbus – Roxxane
FlooringObject Carpet – Silky Seal 1230, Arctic 701, RugXstyle Aberdeen
AcousticsMeeting rooms curtains – Kvadrat, Melu Acoustic, Drops Acoustic, SoftCells | Sound-absorbing room deviders in open space area – in-house design
Workspace FurnitureHeight adjustable desks – Holmris Office, Q 40 | Chairs – Wilkhahn, 184 IN | Sideboards – Fantin, Classic
Conference FurnitureHigh table in material library – Layer+Allemuir, Silta High Table | Tables in meeting rooms and kitchen – New Tendency Masa Table | Studio chairs – Richard Lampert, Mr. Square | Chairs in meeting rooms – Vitra Physix + Stool Tool
Lounge Furniture-
Greenery-
TechnologyIP telephony | Skype for Business | Slack | Microsoft Teams
Gastronomy-
Best workspaces initiators