Tischlerei Rüschler

Design DI Simon Moosbrugger Architekt ZT
Location Schnepfau, Austria
When everything is built of wood, the client is a carpentry shop, and the design received an honorable mention at the 2025 Vorarlberg Wood Construction Award, then it all fits together perfectly. Homogeneity is undoubtedly an ideal
prerequisite for excellence. Moreover, with this company building, we are also located in a traditional wood-building region: Schnepfau in Vorarlberg. In many respects, it therefore makes sense for a woodworking
company to present itself accordingly. After all, it is a matter, on the one hand, of a commitment to promoting this fabulous and natural material, and on the other hand, of showcasing the company’s own expertise.

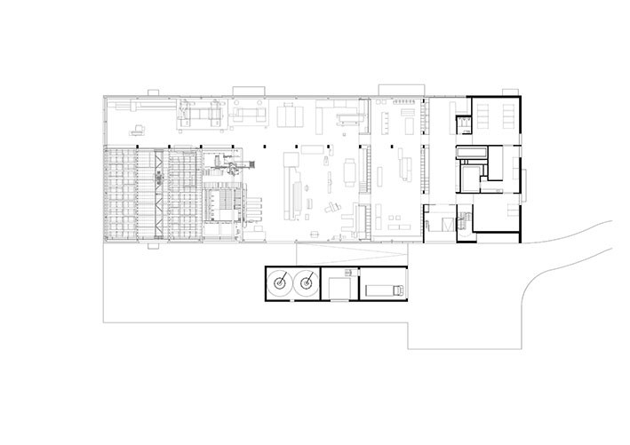
Neither the bosses nor the employees want to forego the practical and atmospheric benefits of a wooden building as a workplace—just think of the many soulless workshops from the 1960s that were built out of concrete and PVC. It is also the customers who are meant to experience how wood feels and smells, how it appears as a surface and form, or how it shapes spaces. And so the carpentry shop built its own space, authentic and an expression of its field of work, which includes interior finishing and carefully designed pieces ranging from kitchens to tables. The basement of the elongated, box-shaped flat-roofed building was constructed of reinforced concrete, while the two upper floors were built using a mixed construction method of wood and reinforced concrete. Clay-casein floors were installed, and for
acoustic optimization, carpeting and sound-absorbing coffered ceilings were used. The bright and open-feeling workshop was fitted with ash wood floors and wall paneling made of 3S panels. It occupies three quarters of the building’s volume, while the administrative and staff areas are concentrated on one side of the building. For one of our Best Workspaces, it goes without saying that the workspaces should be pleasant to use year-round: This is ensured by daylight lamps, humidifiers, and
appropriate extraction and filtration systems. In addition, a consistent temperature of 22–24 °C can be guaranteed here. “Worthy of an award” means not only high quality design—it must also be cost-effective. This is ensured, among other things, by the fact that wood-based materials and solid wood come from our own forest.

Details
ClientRüscher GmbH Tischlerei
CitySchnepfau
CountryAustria
ArchitectsDI Simon Moosbrugger Architekt ZT
CompletionDecember 2022
SectorProduction industry
Project typeNew construction
Gross floor area m2300
Number of employees27
Solutions
Lighting-
Flooring-
Acoustics-
Workspace Furniture-
Conference Furniture-
Lounge Furniture-
Greenery-
Technology-
Gastronomy-
Best workspaces initiators