To achieve this, designers work with glass, screens, or textiles, especially in interior architecture, where a great deal of subtle and compelling effects can be created. This approach was realized in the case of the clothing and underwear manufacturer Triumph International. For the company’s new headquarters in Wallisellen in the canton of Zurich, the architects :mlzd designed a partial floor within a five-story office building.
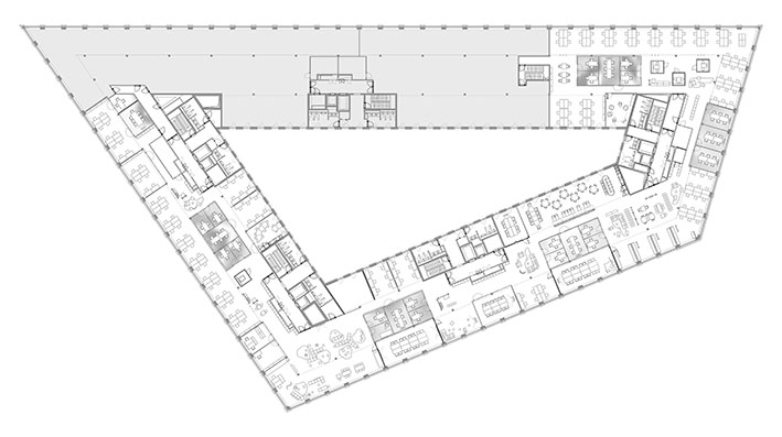
The polygonal floor plan generates dynamic spatial effects, such as obtuse and acute angles, as well as an interplay between views of the urban surroundings and sightlines into the irregular quadrangular inner courtyard. The well-proportioned depth of the floor plates allowed for the definition of two outer zones with natural daylight, suitable for functional use, and a central spatial axis. Facing the courtyard, the circulation and service cores are distributed. In total, the new interior comprises 1,250 square meters of office space for 200 employees from various departments. With the goal of fostering a new culture of (collaborative) work, new forms of activity and collaboration were initiated through corresponding spatial offerings. The starting point was the redesign of the spatial composition and aesthetics of the existing glazed meeting rooms. By enveloping these glass volumes with tulle curtains in different colors, several design layers could be addressed: the colors provide easy orientation; they contrast the otherwise restrained interior with a distinct, formally sensitive language; and, due to their veiling, semi-transparent effect, they allow for a modulation of visual relationships within the office areas—opening up, concealing, or arousing curiosity as needed. Each of the centrally positioned meeting rooms was assigned a well-known personality representing the brand values, whose life motto and work were incorporated into the graphic design of the glass films behind the curtains. Informal meeting areas, canteens, and a reception space come together to form a vibrant, future-oriented working environment. The latter can also be used for town hall events.
| Client | Triumph Universa AG |
| City | Wallisellen |
| Country | Switzerland |
| Architects | :mlzd |
| Completion | April 2025 |
| Sector | Fashion |
| Project type | Modification/ conversion |
| Gross floor area m2 | 3,283 |
| Number of employees | 202 |
| Lighting | - |
| Flooring | - |
| Acoustics | - |
| Workspace Furniture | - |
| Conference Furniture | - |
| Lounge Furniture | - |
| Greenery | - |
| Technology | - |
| Gastronomy | - |