REAL REQUIREMENT

Design Mint Architecture
Location Wetzikon, Switzerland
BANK AVERA HEADQUARTERS

authenticity and realness

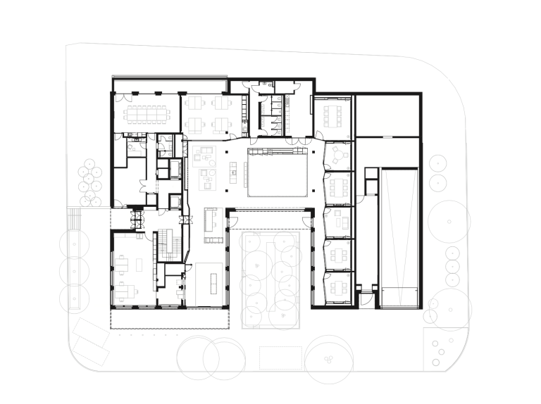
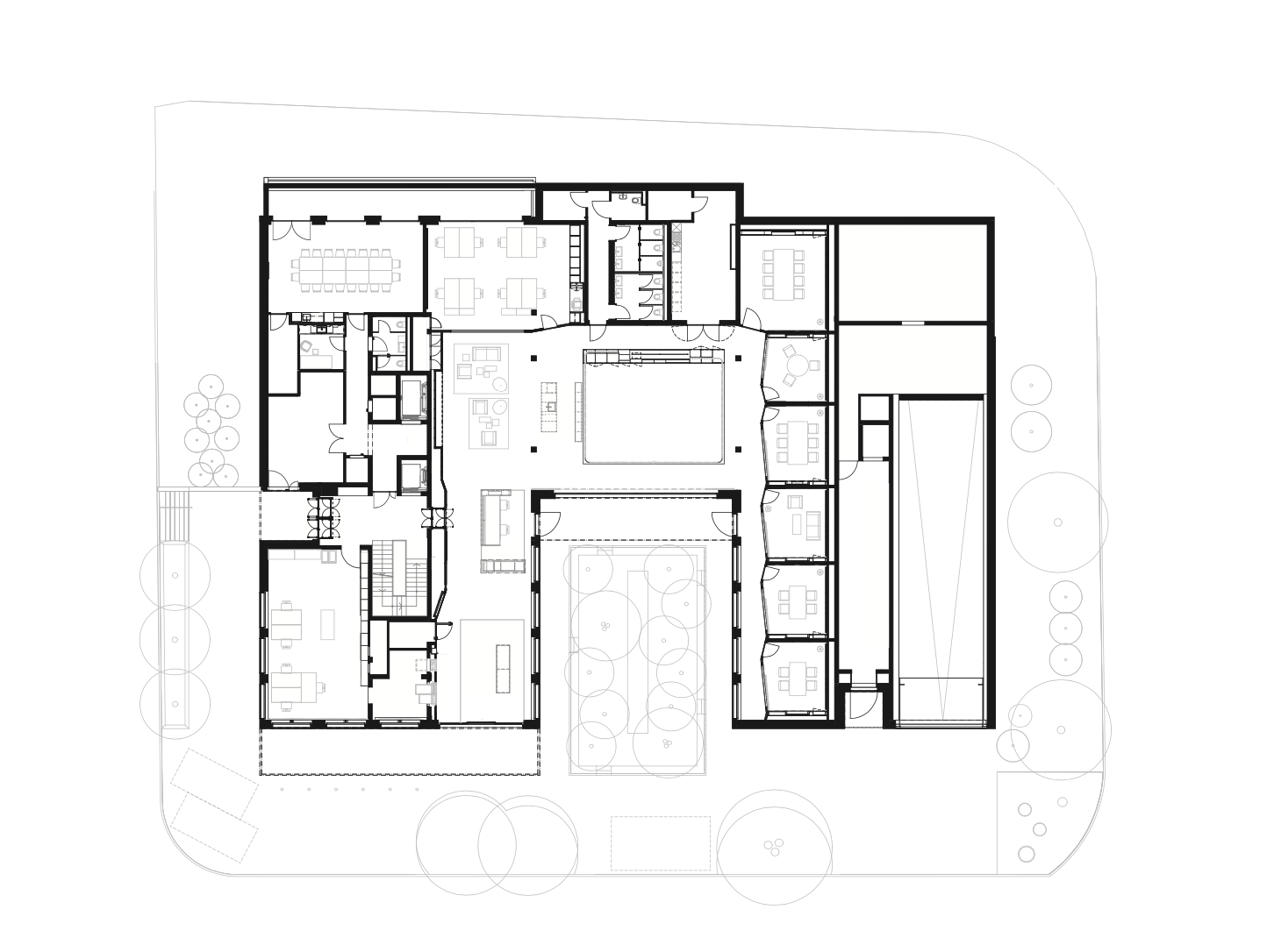
The new headquarters of Bank Avera in Wetzikon consists of two buildings, each with five floors on a shared, horseshoe-shaped ground floor. This is accessed from the side via a main entrance and integrates an inner courtyard open to the south-west with a water basin and trees. The four upper floors provide the company’s offices with 2,273 square metres of space and attractive windowed façades with views of the small town. Mint Architecture from Zurich, who were commissioned with the sophisticated interior design, were guided by the bank’s philosophy of “authenticity and realness”. Consequently, the planners developed a design language for the interior that is timelessly calm and discreet, but at the same time makes a confident statement through the use of high-quality materials.

contemporary bank

The atmosphere is warm and dignified and characterised by solid practicality. Carefully crafted oak fixtures and light-coloured, natural floor coverings are used throughout. The dark seating and office desks set colourful accents. The selected lighting design creates a specific room aesthetic, desired moods and responds to required functions. The open-plan customer area on the ground floor comprises the reception, a spacious interaction zone equipped with the latest communication technology and several consultation rooms. They are lined up in the side wing behind an attractively angled partition wall. Further areas accommodate some of the desk workstations, which are otherwise spread across the upper floors, as well as a conference room. The higher floors are partially organised on an open floor plan and designed for hybrid working, with the circulation route leading around the central access and service core as a corridor. Workstations, meeting rooms and a kitchenette alternate on each floor.

"The close collaboration between architecture and interior design led to an inspiring result."

What do you consider to be the key qualities of a good workplace?
Mint Architecture: The quality of a working environment depends crucially on how the needs of the users are translated into the three-dimensional space. The functionality of the space should be orientated towards the needs, activities and preferences of the employees. This is achieved through the use of different room typologies that enable both collaboration and retreat and differ in terms of furnishings and atmosphere. A central place for exchange and communication promotes the work culture, and a flexible workplace concept enables adaptation to changes and efficient space utilisation.
Do you see any similarities in interior design for living and working?
Absolutely. In both cases, the aim is to design the space according to the individual needs of the users in order to optimally support their daily routines. In general, the boundaries between living and working are becoming increasingly blurred. Hybrid forms of work are integrating workplaces into living areas and, conversely, creating retreats and communal spaces with a homely atmosphere in offices. Ideally, the spaces reflect the personality and values of the people as well as the companies and organisations.
Which functional aspects do you consider to be the most important for the future development of workspaces?
Rooms must be able to be flexibly adapted to different scenarios with the help of movable furniture. Quiet working is becoming increasingly important, for which work alcoves, focus rooms and video conferencing areas are needed in addition to open-plan areas. To be able to compete with the advantages of working from home, quality in design and atmosphere are essential for well-being. Seamless integration of remote employees and an IT infrastructure integrated into the room design are also required. Investments in smart buildings enable energy efficiency and facilitate space utilisation.

Details
ClientBank Avera
CityWetzikon
CountrySwitzerland
ArchitectsMint Architecture AG
Completion-
SectorFinance
Project typeNew building
Gross floor area m23391
Number of employees110
Solutions
LightingAP free-standing luminaire: Zumtobel, Linetik; Recessed spotlights (ambient lighting): Tulux, Equip; Accent lighting: Flos, String Light Sphere
Flooring-
Acoustics-
Workspace FurnitureHaworth Office desks: Haworth, Lyft Kitchenette table: Haworth, Connect Screen: Haworth, Drift Container: Haworth, HC1 Clipboard: Haworth, Be_Hold Armchair: Haworth, Adelaide/ Vitra Side tables: Vitra, Wooden Side Table + Metal Side Table Chair: Vitra, Soft Pad Chair EA 208/ Horgenglarus Conference room table: Horgenglarus, Prova Meeting room table: Horgenglarus, Prova/ Very Wood Chair: Very Wood, Egadi21/ Cappellini Bar stool: Cappellini, Tate/ Muuto Sofa + armchair: Muuto, Outline Studio/ Mooi Lounge rug: Mooi, Liquide Layer Agate S210
Conference Furniture-
Lounge Furniture-
Greenery-
TechnologyAudio/video installation: Controlled via KNX system, enables various programmed scenarios.
Gastronomy-
Best workspaces initiators